房地产销售团队

我们多年来卓越的销售业绩,让我们成为多家著名地产开发商的VVIP销售团队!

昔日有酒昔日醉,今朝文创焕新姿!

类型:Condo    发布时间:2020-02-11     阅读:857

一年一度的多伦多电影节,因为吸引众多一线明星来做首映宣传,已经蛮声世界。但您知不知道,多伦多有这么一个地方,她被国家地理杂志评选为旅客至多伦多必游景点,因为超过 800 部的电视剧集和电影都是在此取景。耳熟能详的有好莱坞大片:《芝加哥》、《X战警》、《龙卷风》等她,就是在 1988 年 11 月 11 日被列为世界遗产的“Distillery District”酿酒区。

WeChat Image_20200211152014.jpg
酿酒区是1832年由Gooderham和Worts两人创立的。经过半个世纪的发展,古德汉·沃兹酿酒厂不仅成为大英帝国最大的酒厂,也是当时全世界最大的酿酒厂。酿酒厂主要生产烈性酒,曾年产200万加仑的威士忌,销往全球。到上世纪90年代,酒厂终于停止酿酒。2001年,酒厂所在区域被 Cityscape Holdings 公司收购,并开始将其改建为文艺休闲娱乐区。

他们对区内 45 座十九世纪的建筑加以维修保养,并将该区重新命名为古酿酒厂区,吸引各种文化休闲娱乐商户的加盟入驻。2003年正式开放后,就成为多伦多最大的文化艺术中心。现在这片步行休闲区已拥有十五家美术馆,一些画廊甚至在国际上都有比较高的声誉。另外还有各种博物馆、排练厅、服饰店、摄影室、小酒馆、咖啡店、酒吧。
WeChat Image_20200211152027.jpg
WeChat Image_20200211152103.jpg
WeChat Image_20200211152128.jpg
WeChat Image_20200211152134.jpg

<<  滑动查看下一张图片  >>

从现代大都市多伦多的繁华与喧嚣中走进Distillery,仿佛置身於另一个世界。漫步在红砖铺装的马路上,细细品味着一处处或是红砖砌筑、或是毛石垒成的古旧建筑,仿佛时光倒逝,回到了19世纪。Distillery的每一座建筑,就连那一石、一木都在向拜访它的客人们讲述著一段段故事。

1581452662378656.jpg

建筑是历史的载体,历史又是人类文明的传拥有这个楼盘的一套物业,把自己溶入这古老时空,是读懂Distillery这部石头史书的最好方式。而我,就是帮你时空穿梭的不二贵人!

WeChat Image_20200211152215.jpg

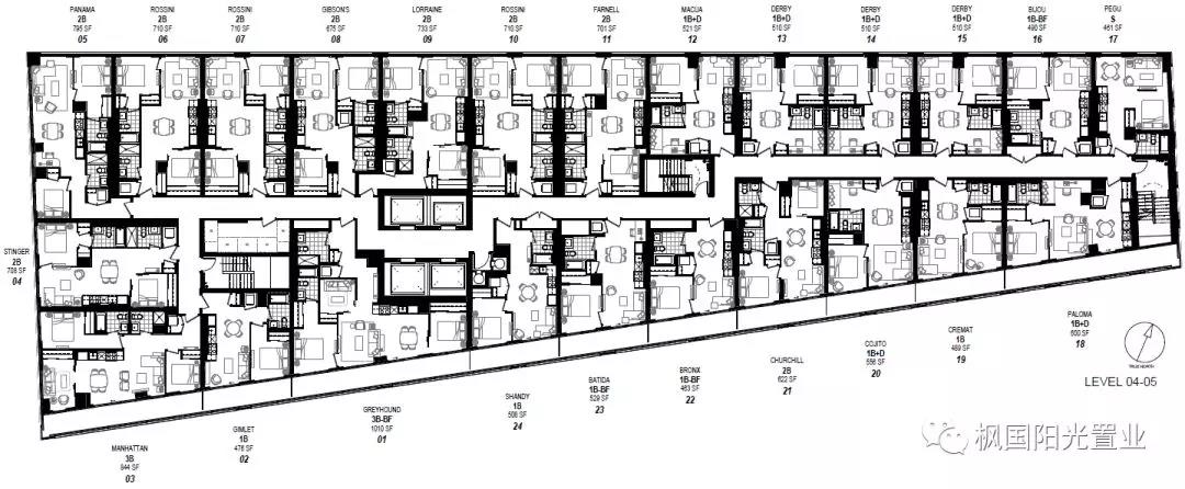
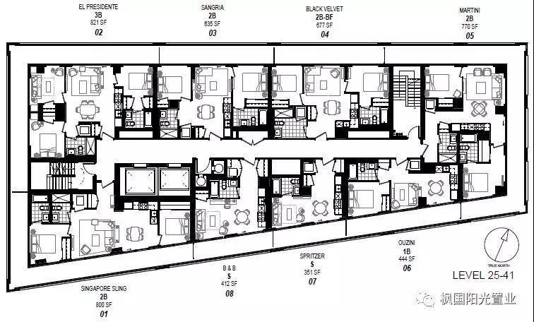
由老牌开发商 Lanterra 开发的这个公寓,在古老的空间中注入了新的内涵,仿佛在一个旧的躯壳中孕育了一个新的生命。全栋楼的户型抢先看!

WeChat Image_20200211152232.jpg


WeChat Image_20200211152250.jpg

WeChat Image_20200211152306.jpg

WeChat Image_20200211152318.jpg